Cod. 2272
casa a schiera
Garda
€ 1.500.000,00
Video
2
3

Scorri le immagini
dell'immobile

Scheda immobile
Tipologia:
casa a schiera
Dimensione:
192 mq
anno
2026
Piano:
piano interrato
piano terra
primo piano
Piani:
0
Riscaldamento:
riscaldamento autonomo
riscaldamento a pavimento
riscaldamento termopompa
Stato d'uso:
nuovo
Classe energetica:
A4
PRESTIGIOSA VILLA A SCHIERA IN CONTESTO DA SOGNO IN VISTA LAGO
GARDA - RESIDENCE CA' I NOCENTI - Elegante porzione centrale di casa a schiera immersa nella natura inserita in un fantastico contesto che ricrea l'antica corte rustica preesistente. La proprietà sorge su una collina panoramica dominante il Lago di Garda e offre viste mozzafiato sia sul verde circostante che sulle acque cristalline del lago stesso letteralmente a due passi dal Golf Ca' Degli Ulivi.

L’immobile è inserito in un contesto unico per tranquillità e privacy: usufruisce di un bellissimo portico che collega il living al giardino privato ed è circondato da rigogliosi giardini terrazzati, ulivi secolari ed essenze mediterranee che creano scorci suggestivi durante tutte le stagioni. Gli spazi esterni sono impreziositi da una grande piscina panoramica con solarium attrezzato, ideale per rilassarsi godendo di incantevoli tramonti o per organizzare momenti conviviali all’aria aperta.

La struttura principale richiama lo stile delle dimore storiche gardesane grazie ai materiali pregiati come pietra locale e copertura in legno e cotto; ampie vetrate permettono alla luce naturale di valorizzare ogni ambiente interno regalando luminosità costante. L’accesso avviene tramite vialetti privati tra alberature curate, mentre l’organizzazione degli spazi garantisce massima riservatezza anche nelle zone comuni.
Comodissimo inoltre il doppio garage comunicante direttamente con l'abitazione.

Questa soluzione rappresenta la scelta perfetta per chi desidera vivere nel lusso discreto della natura senza rinunciare alle comodità offerte dal centro storico di Garda — raggiungibile rapidamente — dalle spiagge lacustri alle attività sportive outdoor fino agli ottimi ristoranti tipici locali.

Non perdere questa rara opportunità! Contatta subito l’agenzia immobiliare di riferimento per ricevere maggiori dettagli o fissare una visita esclusiva.
Leggi tutto
Chiudi
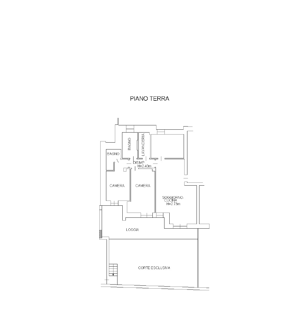
PLANIMETRIE
Planimetria 1
Vuoi informazioni su questo immobile?
AGENZIA DI RIFERIMENTO
Garda
Corso Italia, 95
Tel +39 045 2474396
info@immobilinea.it
Cerchi altri immobili a Garda?
Trova
Cerca altre proposte di casa a schiera
Trova