Cod. 2162
quadrifamiliare
Torri del Benaco
€ 2.050.000,00

Scorri le immagini
dell'immobile

Scheda immobile
Tipologia:
quadrifamiliare
Dimensione:
790 mq
anno
1933
Piano:
piano terra
primo piano
ultimo piano
Piani:
dato non indicato
Riscaldamento:
riscaldamento autonomo
Stato d'uso:
ottimo
Classe energetica:
In fase di definizione
PALAZZO IN CENTRO STORICO CON VISTA LAGO E GARAGE!
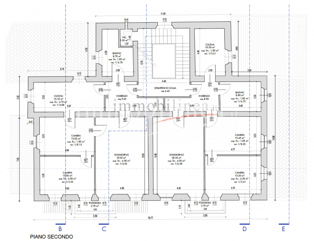
TORRI DEL BENACO - CENTRO STORICO - Questo maestoso palazzo storico edificato nel 1933 e recentemente ristrutturato, si trova nel cuore del centro storico di Torri del Benaco, letteralmente a due passi dal porto medievale ed in prima fila vista castello! L'accesso principale da Via Fratelli Lavanda conduce all'atrio d'ingresso, con cantine e giardino sul retro, mentre l'ampio vano scale, ove poter installare l'ascensore, accompagna ai 4 grandi appartamenti quadrilocali distribuiti sul primo e secondo piano con terrazze e balconi in vista lago. Il sottotetto al terzo ed ultimo piano si presta ad essere personalizzato a piacere date le generose dimensioni. Oltre alla posizione centralissima ed alla storicità, l'unicità di questo immobile è data anche dalle importanti altezze interne che arrivano fino a 4,5 metri! Nella vendita sono compresi sei garage interrati a 5 minuti a piedi dalla struttura. Occasione unica!
Leggi tutto
Chiudi
PLANIMETRIE
Planimetria 1
Planimetria 2
Planimetria 3
Planimetria 4
Planimetria 5
Planimetria 6
Planimetria 7
Planimetria 8
Vuoi informazioni su questo immobile?
AGENZIA DI RIFERIMENTO
Garda
Corso Italia, 95
Tel +39 045 2474396
info@immobilinea.it
Cerchi altri immobili a Torri del Benaco?
Trova
Cerca altre proposte di quadrifamiliare
Trova