Cod. 2146
bifamiliare
Torri del Benaco
€ 498.000,00
Video
3
3

Scorri le immagini
dell'immobile

Scheda immobile
Tipologia:
bifamiliare
Dimensione:
110 mq
Piano:
piano terra
primo piano
Piani:
piano numero
Riscaldamento:
riscaldamento autonomo
Stato d'uso:
12
Classe energetica:
In fase di definizione
VILLETTA CON SPETTACOLARE VISTA LAGO!
TORRI DEL BENACO - Frazione Pai - Immobilinea propone in esclusiva questa villetta bifamiliare composta dal luminoso soggiorno con cucinotto e l'accesso alla magnifica terrazza abitabile in piena vista lago, la camera matrimoniale ed il bagno finestrato; al piano superiore mansardato un'ampia camera con abbaino in vista lago ed un altro bagno finestrato.
Al piano seminterrato si sta ritrutturando completamente un monolocale con bagno finestrato e con uscita sul giardino di proprietà nel quale poter inserire una piccola piscina, il tutto sempre in bellissima vista lago!
La casa è in fase di ristrutturazione quindi vi è la possibilità di personalizzazione delle disposizioni interne, degli impianti e della finiture!
Ideale per chi vuole rilassarsi e staccare dalla vita quotidiana!
Leggi tutto
Chiudi
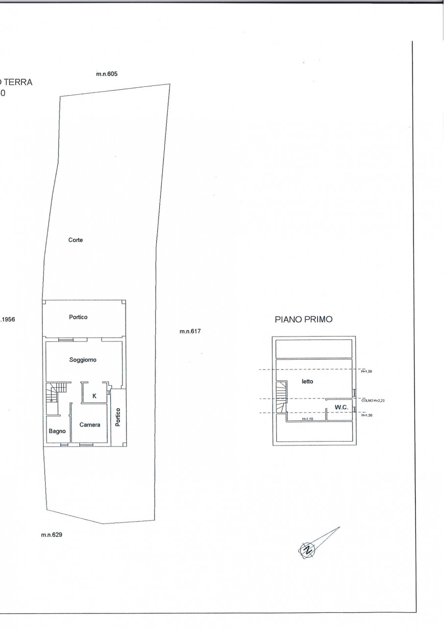
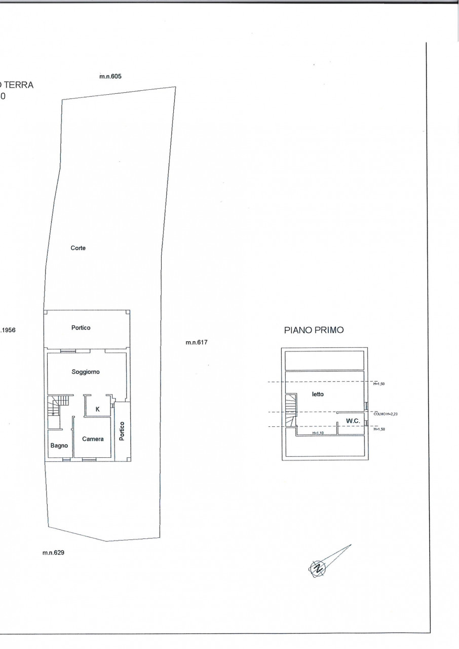
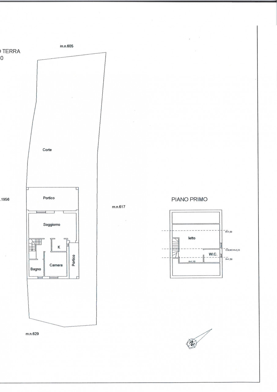
PLANIMETRIE
Planimetria 1
Planimetria 2
Planimetria 3
Planimetria 4
Planimetria 5
Planimetria 6
Planimetria 7
Planimetria 8
Vuoi informazioni su questo immobile?
AGENZIA DI RIFERIMENTO
Garda
Corso Italia, 95
Tel +39 045 2474396
info@immobilinea.it
Cerchi altri immobili a Torri del Benaco?
Trova
Cerca altre proposte di bifamiliare
Trova